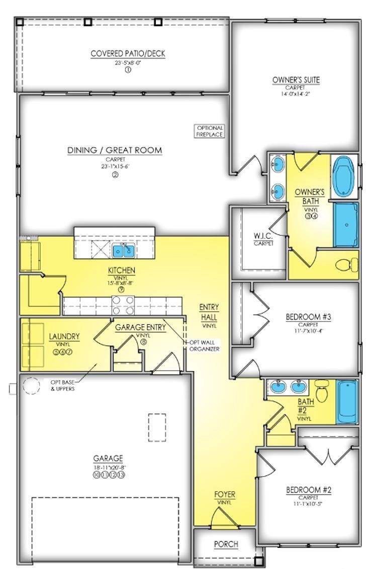
[] Welcome to Edgefield – a charming new home community in Loris, just minutes from Longs! Experience the serenity of country living with modern comforts. The Bailey II model offers 3 bedrooms and 2 baths, featuring luxury vinyl flooring throughout the main living areas and cozy carpet in all bedrooms. Enjoy outdoor living on the rear covered porch. Estimated completion time end of June 2026. Currently at framing. Photos are for illustrative purposes only and may depict a similar home built elsewhere. All measurements are approximate and should be verified by the buyer or buyer’s agent. Pricing, features, terms, and availability are subject to change without notice or obligation.
GSH Realty SC, LLC
$289,990
2025
Detached
1989
1629
Ranch
Garage Door Opener, Security System, Stairs To Attic, Wshr/Dryer Connection
3
2
0
No
Ceiling Fan
Carpeting, Luxury Vinyl Plank/Tile
Area
Range, Dishwasher, Garbage Disposal, Microwave, Breakfast Bar, Stainless Steel Apps., Solid Surface Countertops
1st Floor Baths, 1st Floor Bedrooms, Foyer, Laundry/Utility
Electricity, Sewer, Water Public
Rear Porch, Lawn Sprinkler
Masonry Accent, Vinyl Siding
Slab
Central Air, Central Heat, Electric
Single Level
Attached 2-Car
4
Electric
0.23
Rectangular
Outside City Limits
Electricity, Sewer, Water Public
4-15-2026
Home Owners Assoc. Fees, Restrictions, Long Term Rental Allowed, Owner Allowed Motorcycle, Owner Allowed Golf Cart, Owner Allowed Pet
Edgefield
03B Loris to Longs Area--North o
Horry
21605020007
$78
Barbara Johnson 843-213-6804
Common Maint/Repair, Electric Common, Legal and Accounting, Manager, Pool Service, Trash Pickup
Daisy Elementary School
Loris Middle School
Loris High School
Copyright 2026 Coastal Carolinas Association of REALTORS®, Inc.
Information Deemed Reliable, but Not Guaranteed.
